ImmoLiège.be » Immo à vendre » Terrain à vendre Liège » Terrain à vendre à Fléron

9 terrains à vendre à 4620 Fléron

Recevez quotidiennement les nouvelles annonces correspondant à vos critères de recherche

Les annonces de terrain à vendre à Fléron les plus récentes sont présentées en tête de liste.

Terrain à vendre à Fléron 4620 131680.00€  chambres m² - annonce 698040 photo

Terrain à vendre à Fléron

131.680 €

0 ch. | 0 m2 | clock 1m

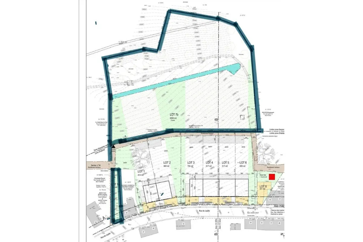
Des informations complètes et poussées seront disponible sur rendez-vous au terrain. Hubert CRESPIN 0495/59.56.23 Parcelle 7a et 7b superficie du 7ième lot =… Lire plus

Terrain à vendre à Fléron 4620 99000.00€  chambres m² - annonce 616393 photo

Vente terrain Fléron

99.000 €

0 ch. | 0 m2 | clock 5m

Vaste terrain situé en partie sur Fléron et Beyne-Heusay.Terrain en zone verte repris comme prairie. Superficie de 35.476m²Accès par le chemin à gauche… Lire plus

Terrain à vendre à Fléron 4620 137500.00€  chambres m² - annonce 541828 photo

Terrain à vendre à Fléron 4620

137.500 €

0 ch. | 0 m2 | clock 8m

Des informations complètes et poussées seront disponible sur rendez-vous au terrain. Hubert CRESPIN 0495/59.56.23 LOT 6- 625 m² Sixième lot. Sur un terrain… Lire plus

Terrain à vendre à Fléron 4620 155100.00€  chambres m² - annonce 540349 photo

Terrain vente 4620 Fléron

155.100 €

0 ch. | 0 m2 | clock 8m

Des informations complètes et poussées seront disponible sur rendez-vous au terrain. Hubert CRESPIN 0495/59.56.23 LOT 3- 705 m² pour 3 façades Troisième lot… Lire plus

Terrain à vendre à Fléron 4620 191180.00€  chambres m² - annonce 540350 photo

Terrain à vendre à 4620 Fléron

191.180 €

0 ch. | 0 m2 | clock 8m

Des informations complètes et poussées seront disponible sur rendez-vous au terrain. Hubert CRESPIN 0495/59.56.23 LOT 2- 869 m² Deuxième lot Sur un terrain… Lire plus

Terrain à vendre à Fléron 4620 179080.00€  chambres m² - annonce 540351 photo

Terrain à vendre à Fléron

179.080 €

0 ch. | 0 m2 | clock 8m

Des informations complètes et poussées seront disponible sur rendez-vous au terrain. Hubert CRESPIN 0495/59.56.23 LOT 1- 814 m² 3 façades Premier lot Sur… Lire plus

Terrain à vendre à Fléron 4620 113740.00€  chambres m² - annonce 537597 photo

Vente terrain Fléron

113.740 €

0 ch. | 0 m2 | clock 8m

Des informations complètes et poussées seront disponible sur rendez-vous au terrain. Hubert CRESPIN 0495/59.56.23 LOT 4- 517 m² Cinquième lot Sur un terrain… Lire plus

Terrain à vendre à Fléron 4620 113740.00€  chambres m² - annonce 536942 photo

Terrain à vendre à Fléron 4620

113.740 €

0 ch. | 0 m2 | clock 8m

Des informations complètes et poussées seront disponible sur rendez-vous au terrain. Hubert CRESPIN 0495/59.56.23 LOT 5- 517 m² Cinquième lot Sur un terrain… Lire plus

Terrain à vendre à Fléron 4620 125000.00€  chambres m² - annonce 533826 photo

Terrain vente 4620 Fléron

125.000 €

0 ch. | 0 m2 | clock 14m

Terrain plat de 625 m² idéalement situé dans le fond d’un lotissement de 19 lots (maisons unifamiliales), ce terrain est idéal pour une… Lire plus

Recevez quotidiennement les nouvelles annonces correspondant à vos critères de recherche

Adapter vos critères de recherche

Vous n’avez pas trouvé le terrain à vendre que vous recherchiez à Fléron parmis les 9 annonces?
Vous pouvez toujours chercher dans les autres communes proche de Fléron ou consulter les annonces de biens similaires.

Biens similaires à vendre à 4620 Fléron

Terrains à vendre dans les communes limitrophes de Fléron

Vente ou location? Élargissez votre spectre de possibilité

Recevez quotidiennement les nouvelles annonces correspondant à vos critères de recherche